
160 Acres Lot
160 Acres Lot
Key Details
Property Type Vacant Land
Listing Status Active
Purchase Type For Sale
MLS Listing ID SW24240221
HOA Y/N No
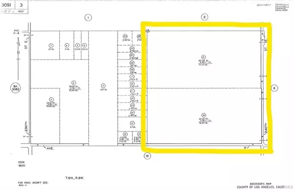
Lot Size 160.000 Acres
Property Description
Location
State CA
County Los Angeles
Area Plm - Palmdale
Zoning LCA22*
Interior
Fireplace No
Exterior
Community Features Hiking, Rural
Utilities Available Water Not Available
View Y/N Yes
View Mountain(s)
Building
Lot Description Agricultural, Orchard(s)
Water None
New Construction No
Others
Senior Community No
Tax ID 3091003015
Acceptable Financing Cash, Cash to New Loan, Contract, 1031 Exchange, Private Financing Available
Listing Terms Cash, Cash to New Loan, Contract, 1031 Exchange, Private Financing Available
Special Listing Condition Standard


"My job is to find and attract mastery-based agents to the office, protect the culture, and make sure everyone is happy! "




